Core Services
- Planning
- Tendering and submission
- Construction site supervision
Team
- Andreas Gaiser
- Dong-Whan Lee
- Bernard Stipic
- Yassine Falih
GFS: 1.000 qm
Value: 5 M €
Status: finished 01/2022
The Challenge
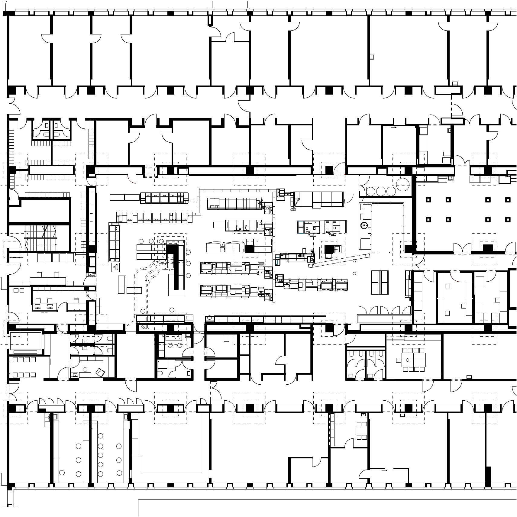
The institute of laboratory medicine at the University hospital Munich at Großhadern campus is meant to be expanded by a fully automatical laboratory chain with an attached biobank. Being the first attached system worldwide of an automated biobank to a laboratory automation system, it contributes significally to an enhanced patient-driven research. The selected areas – currently already being used as laboratories – can be found in the basement of section 0222N of the hospital. They show a small structuration of rooms, combined with a concentration of noxious substances. According to todays laboratory techniques hoyos architects provide planning for a bigger surface. In addition the dimensions of the new automated lab require areas of a certain size.
Solution
Before getting started with the actual task, the areas contaminated with asbestos are being cleaned and the material is disposed of correctly. The area that is meant to be refurbished is located in a difficultly accessable location in the basement, which requires special construction site facilities, off over 500 meter. The clinic’s paths and accesses, the elevators and ramps can be used, considering the utmost measures of security and protection. There are restrictive working hours to be respected. High necessities of coordination among all project partners and neighbouring users are being met by planning and informing about noise, vibration and dust.
The defined planning area is being refurbished and retroffited in terms of construction and engeneering to S1 and S2 lab standards, coordinating the needs of future users. Fitting of the automated lab and the attached biobank is done in close collaboration with the companies Roche Diagnostics und Liconic Instruments.




