Leistungsbild
- Machbarkeitsstudie
- Entwurfsplanung
- Genehmigungsplanung
- Objektüberwachung
Mitarbeit
- Andreas Gaiser
- Yvonne Hirschmann
- Jonas Pauli
BGF: 3.300 m²
Bausumme: 9,8 Mio. €
Fertigstellung: 2019
Die Herausforderung
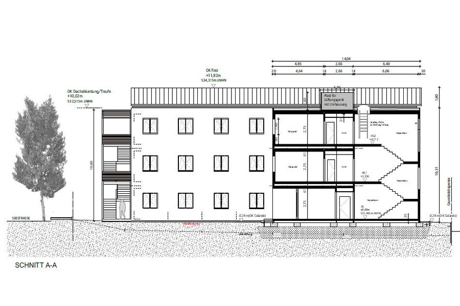
Während der Sanierung der psychosomatischen Klinik Roseneck müssen Patientenzimmer und Teile der Klinikschule ausgelagert werden.
Lösung
Die wirtschaftlichste Umsetzung in Bezug auf Berücksichtigung der Bedürfnisse der Patienten und der gleichzeitigen Schnelligkeit der Umsetzung der Sanierung ist die Bereitstellung von Patientenzimmern in Modulbauweise. Ebenso ist es erforderlich, die Klinikschule auszulagern. Hierzu wird die Machbarkeit an zwei Standorten in Kliniknähe ausgearbeitet. Es werden die behördlichen Bedingungen der Standorte einbezogen.
Copyright Fotografie: Cadolto Modulbau Anna Seibel Fotografie Sebalin UG (Fotos Modulbau Bettentrakt)





