Leistungsbild
- Planung
- Ausschreibung/Vergabe
- Objektüberwachung
Mitarbeit
- Andreas Gaiser
- Dong-Whan Lee
- Bernard Stipic
- Yassine Falih
BGF: 1.000 m² NF
Bausumme: 5,8 Mio. €
Fertigstellung: 01/2022
Die Herausforderung
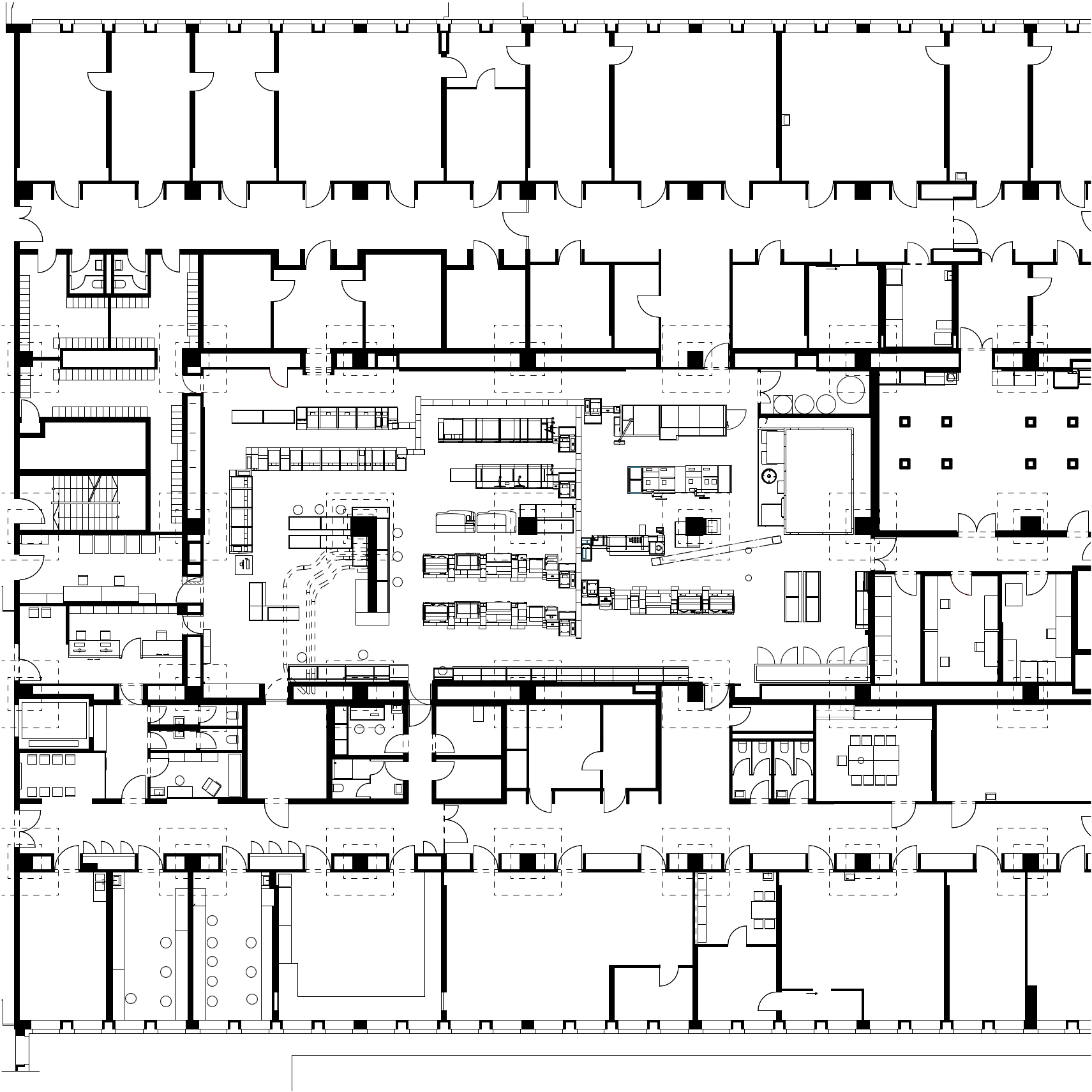
Das Institut für Laboratoriumsmedizin des Klinikums der Universität München auf dem Campus Großhadern soll um eine vollautomatische Laborstraße mit angegliederter Biobank erweitert werden. Sie wird mit der weltweit erstmaligen Anbindung einer automatisierten Biobank an eine Laborstraße wesentlich zur Stärkung der patientenorientierten Forschung beitragen. Die schon heute als Labor genutzten Flächen befinden sich in der Ebene U1 im Bauteil 022N des Klinikums Großhadern und weisen eine kleinteilige Raumstruktur sowie eine Schadstoffbelastung auf. Der heutigen Labortechnik angemessen, soll die Struktur in große Räume umgeplant werden. Darüberhinaus erfordert die Dimension der Laborstraße diese Raumgröße.
Lösung
Im Vorfeld der Maßnahme werden die mit Asbest kontaminierten Bereiche fachgerecht gereinigt und das Material entsorgt. Der umzubauende Gebäudeteil weist eine schwierige Verortung im UG auf, was eine besondere Baustelleneinrichtung über mehr als 500 m Entfernung notwendig macht. Hier können Klinikzuwegungen, Bettenaufzüge und Rampen unter Beachtung größtmöglicher Schutz- und Sicherheitsmaßnahmen genutzt werden. Restriktive Arbeitszeiten müssen eingehalten werden. Erhöhte Abstimmungsnotwendigkeiten mit den Projektbeteiligten und umliegenden Nutzern in Form eines Lärm-, Erschütterungs- und Staubmanagements sind die Folge.
Der definierte Planungsbereich wird sowohl in baulicher, als auch in technischer Hinsicht in enger Abstimmung mit den Nutzern zu S1 und S2-Laboren umgebaut und ertüchtigt. Der Einbau der Laborstraße mit angegliederter Biobank ist fachlich mit den Firmen Roche Diagnostics und Liconic Instruments eng abgestimmt und geführt.






