Leistungsbild
- Ideenwettbewerb
Mitarbeit
- Andreas Gaiser
- Sebastian Hacker
BGF: 4.500 m²
Abgabe: 05/2019
Die Herausforderung
Im traditionellen Münchner Viertel „Ludwigsvorstadt“, am Übergang zwischen den höheren Gebäuden und Baudenkmälern des Goetheplatzes hin zur villenähnlichen Bebauung rund um die Theresienwiese, soll ein Ersatzbau für ein vielfach umgewidmetes Gebäude als Bürogebäude errichtet werden. Der Eigentümer lobt einen Ideenwettbewerb aus.
Lösung
Die klare und präzise Erscheinung des Baukörpers verweist auf die Tradition der urbanen Architekturen Europas, vor allem der des letzten Jahrhunderts, die entscheidend das Bild der Städte mitgeprägt haben. Die elegante und städtische Architektur des Gebäudes Mozartstraße 4 ist durch den Wechsel der Öffnungen und Tiefenwirkung in der Fassade geprägt. Die großzügigen Verglasungen im Erdgeschoss wechseln sich mit gleichmäßigen Fensteröffnungen in den Regelgeschossen ab und finden ihren Abschluss in den oberen Rückstaffelungen der Fassaden zur Mozart- und Haydnstraße hin.
Der Anforderung nach städtischem Arbeiten und zeitgemäßer Formensprache wird auch durch die Materialwahl entsprochen. Mit der Kombination aus einer Sichtbeton-Glasfassade mit massiven Holz-Fenster-Elementen steht sie in der Nachfolge der großen Münchner Verwaltungsbauten des 20. Jahrhunderts.
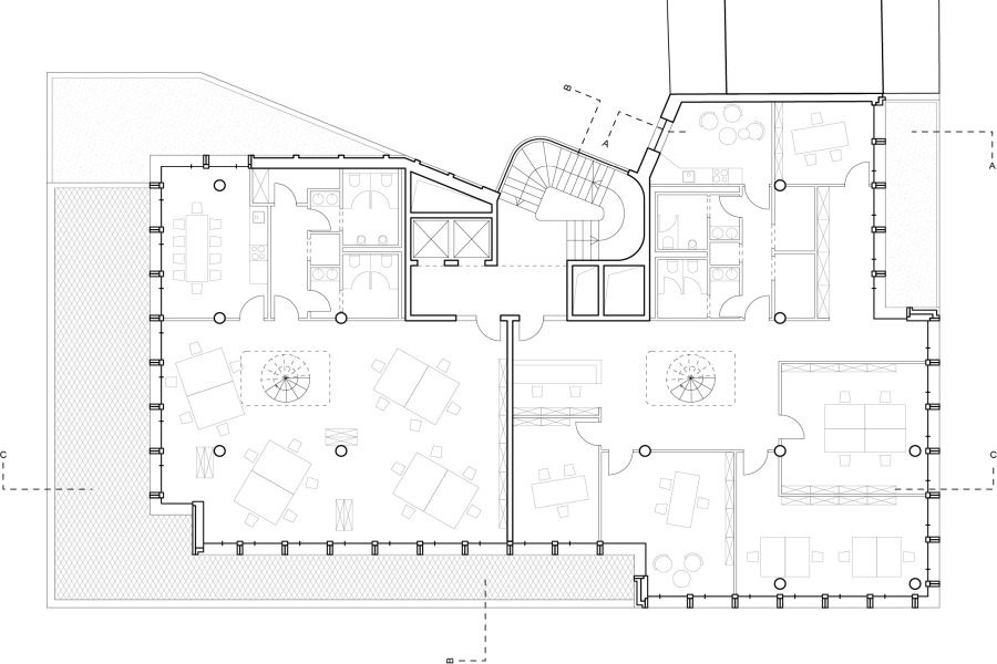
Die Grundrisse sind sowohl in der horizontalen wie auch vertikalen Ebene flexibel gestaltet, so dass sie an die Wünsche und Bedürfnisse der zukünftigen Nutzer angepasst werden können. Dies spiegelt sich vor allem in der Anordnung des Sanitär- und Erschließungskernes wider.
Das Gebäude stellt für die bedeutenden Baudenkmäler am Goetheplatz einen würdigen Hintergrund dar und zeigt sich selbstbewusst im Stadtgefüge. Im Gegensatz zu seinem Vorgängerbau aus den 1960er Jahren bildet der Neubau so einen zeitgemäßen und optisch neuen Auftakt zum angrenzenden Viertel rund um die Theresienwiese mit seiner villenähnlichen Bebauungsstruktur.
Die vorliegende Konzeptstudie wurde in allen Detaillösungen aus der Grundidee der Nachhaltigkeit entwickelt. Nachhaltigkeit wurde dabei jederzeit als ganzheitlicher Begriff für Ökologie, Ökonomie und Soziokultur begriffen. In einem integralen Zusammenspiel zwischen technischen und gestalterischen Systemen wurde daraus eine zukunftsfähige und generationsgerechte Individuallösung für das Gebäude erarbeitet. Hier spielen die Minimierung der Energieverluste durch Wärmedämmung und –rückgewinnung, der Einsatz von regenerativen bzw. CO2-neutralen Energiequellen und ein hocheffizienter Energietransport innerhalb des Gebäudes eine signifikante Rolle.
Hoyos Architekten belegen den 2. Platz im Wettbewerb.




