Leistungsbild
- Machbarkeitsstudie
- Planung
- Objektbetreuung
- Brandschutzkonzept
Mitarbeit
- Jonas Pauli
- Sebastian Hacker
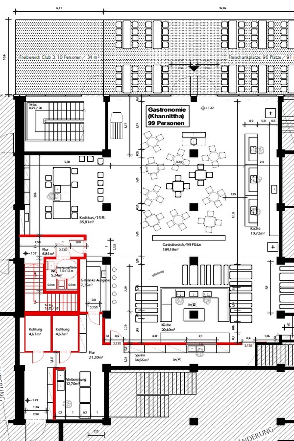
BGF: 400 m²
Bausumme: 0,4 Mio. €
Fertigstellung: 2020 – 2021
Die Herausforderung
Im aufstrebenden Werksviertel in der Nähe des Münchner Ostbahnhofs, dem zukünftigen Platz für das neue Konzertgebäude, wird hoyos architekten mit dem Umbau zu einer thailändischen Erlebnisgastronomie beauftragt.
Lösung
In mehreren, kreativen Zwischenschritten wird eine gastronomische Fläche entworfen für Show-Cooking, Streetfood-Ambiente und Vermittlung von traditioneller thailändischer Esskultur.



