Leistungsbild
- Planung
- Projektbegleitung
- Brandschutzkonzept
Mitarbeit
- Gunda Maurer
- Marta Kopacz
- Yvonne Hirschmann
BGF: 730 m²
Fertigstellung: 2019 – 2020
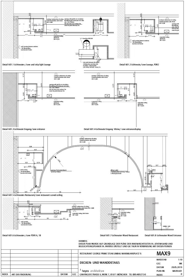
Die Herausforderung
Den innenarchitektonischen Entwurf des Büros Joven Huard für das geplante Steak-Restaurant im Luxussegment soll projektbegleitend baulich und den brandschutz-technischen Anforderungen entsprechend umgesetzt werden.
Lösung
Die Umsetzung dieses internationalen Projektes mit Beteiligten aus unterschiedlichen Ländern liegt komplett in der Hand von hoyos architekten. Dank der interkulturellen Kompetenz des Teams ist eine schnelle Inbetriebnahme möglich.




